Appartamento al piano terra a pochi passi dalla Piazza di Reane
Rif.CMB5 | 102 mq | camere: 3 | bagni: 2 | € 250.000
Descrizione
L'appartamento che proponiamo si trova ad Auronzo di Cadore, nella soleggiata zona di Reane, ed è ideale per chi cerca uno spazio confortevole in una posizione strategica. Situato al piano terra di un edificio di tre piani, servito da ascensore, l'immobile offre una distribuzione funzionale e spaziosa.
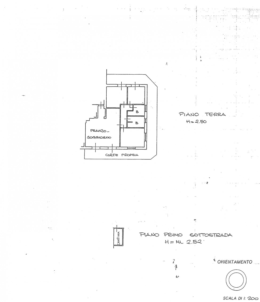
L'immobile è composto da ingresso, corridoio, soggiorno con angolo cottura, tre camere da letto, doppi servizi, di cui uno con vasca e l'altro con doccia e ampio scoperto di pertinenza dove godersi le giornate estive. Al piano interrato cantina e posto auto assegnato in autorimessa condominiale. L'edificio inoltre è dotato di parcheggio scoperto ad uso condominiale.
Il riscaldamento è autonomo, con due possibilità: caldaietta a GPL o sistema a idropellet, per una maggiore efficienza energetica e flessibilità di scelta.
La posizione è privilegiata: a circa 300 metri dagli impianti di risalita e a circa 150 metri dalla piazza di Reane, facilitando gli spostamenti a piedi per raggiungere negozi e impianti di risalita, rendendo questa soluzione perfetta per chi desidera vivere vicino alle principali attrazioni e servizi del luogo.
Dettagli
| Anno di costruzione: | 2000 |
| Prezzo: | € 250.000 |
| Metri quadri: | 102 mq |
| bagni: | 2 |
| camere: | 3 |
| Classe energetica: |
I.P.E. > 175,00 kWh/m2 anno |
| posto auto: | 1 |
Ambienti: | |
Comfort: | |
Livelli: | |
| Comune: | Auronzo di Cadore |
| Indirizzo: | Via Ambata |


















